※画像はイメージです
3/20(金・祝)21(土)22(日)28(土)29(日)、4/4(土)5(日)11(土)12(日)18(日)19(日)の土・日・祝に開催しております。
住起産業がアキュラホームのFCに加盟しました。アキュラ展示場としては三島では初出店となります。
3/20(金・祝)~4/19(日)の土・日・祝日に見学会を開催いたします。
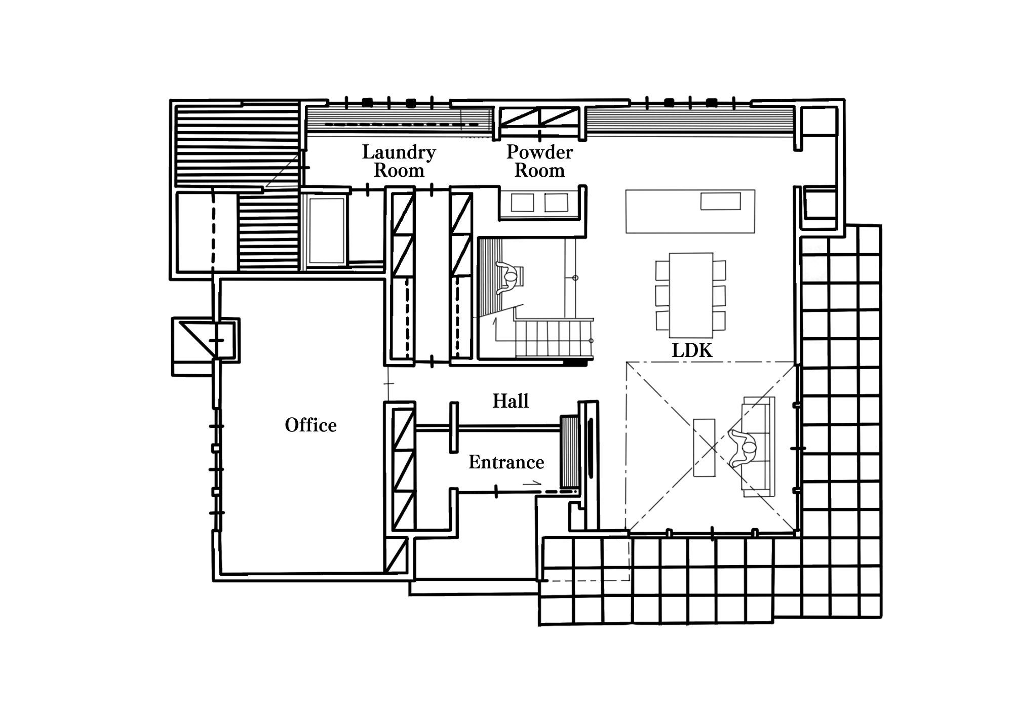
吹き抜けリビングの圧倒的な大空間と大開口、そして日本美を感じるJAPANDI内装 アキュラホームの技術が叶える耐震性能と超断熱が暮らしを快適なものへそして住まいの長寿命へ導きます。是非ご体験にお越しください。
スタッフが常時おりますので、ぜひお気軽にご見学にお越しください。ローンや土地選びなど家づくりに関するご相談ご質問などもございましたら、現地スタッフにお尋ねください。
今年は新しい生活をスタートさせたいとご検討の方、ぜひこの機会にモデルハウスをご見学ください!



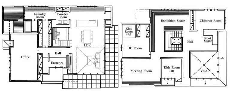
間取り


見学会情報
- 開催日時
- 開催場所
- 建築様式
- 間取り
- 面積
- 構造
- 連絡先
見学会概要
場所:静岡県三島市松本27-1 SBSマイホームセンター三島展示場内 アキュラホーム展示場
3月14日新規オープンのモデルハウスをご紹介しております。お気軽にお問合せください!
