見学会情報
- 開催日時
- 開催場所
- 建築様式
- 間取り
- 面積
- 構造
- 連絡先
STAY&WORK - 吹き抜けとIOTを搭載した快適な住まい-
家で過ごす時間が増えているからこそ、快適な住まいで安心して過ごしたいものです。
そこでウイルスや有害物質をお部屋に持ち込まない工夫をしたり、
おうち時間をより楽しく快適に過ごすためのアイデアを提案します。
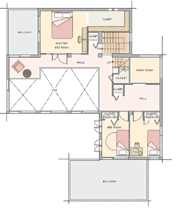
間取り図


みどころポイント

丸テーブルダイニング、キッチン一体ダイニング、外部テラスダイニングと三つのダイニング空間を設けました。雰囲気が変わることで食事の楽しみ方も広がり、心も体もリフレッシュできます。

ハイムの構造体の強さを生かした大きな吹き抜けと大開口が特徴です。この明るさと開放感を是非体験してみてください。

玄関近くに手洗いがあれば、室内に埃やウイルスを持ち込みにくく出来ます。
また、洗面と脱衣室を分けることで、目隠しを出来たり誰かがお風呂に入っていても洗面を気軽に使うことが出来ます。
家づくりをお考えの方も、まだ具体的でない方も、
この機会にぜひ長泉展示場へ足をお運びください。
来場特典

※特典は1家族様1つとさせていただきます
※ご契約者様は対象外とさせていただきます
